大型厨房设备厂家告诉你厨房工作间应该如何分割
发布人: 四川优佰特厨房设备公司 发布时间:2026.04.24
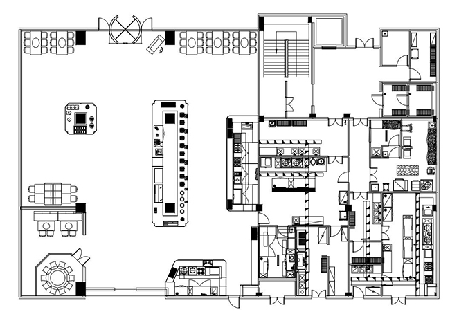
在一个比较大型的商用厨房中都会划分为几个功能区,每个功能区都负责完成厨房加工制作的一部分。而在每个功能区内,为了食品安全和制作工艺,还需要进行进一步的分割。那么,工作间还应该如何分割和划分呢?作为专业的大型厨房设备厂家,我们有多年的商用厨房设计经验,现在就和大家分享相关的知识。
作为专业的成都厨房设备厂家,我们总结 商用厨房工作间分割和隔离的相关知识,主要有以下几点:
1.食品处理区应设置专用的粗加工(全部使用半成品原料的可不设置)、烹调(单纯经营火锅、烧烤的可不设置)和餐用具清洗消毒的场所,并应设置原料和(或)半成品贮存、切配及备餐(酒吧、咖啡厅、茶室可不设置)的场所。
2.应设置相应的专用操作场所制作现榨果蔬汁和水果拼盘。进行凉菜配制、裱花操作和集体用餐配送单位进行食品分装操作,应分别设置相应专间。
3.集中备餐的食堂和快餐店应设备餐专间,供应自助餐的餐饮单位或无备餐专间的快餐店和食堂,就餐场所窗户应为封闭式或装有防蝇防尘设施,门的防蝇防尘设施以空气幕为宜。

4.粗加工操作场所内应分别设置动物性食品和植物性食品的清洗水池,水产品的清洗水池宜独立设置,水池数量或容量应与加工食品的数量相适应。食品处理区内应设专用于拖把等清洁。
5.工具的清洗水池,其位置应避免污染食品及其加工操作过程。食具清洗消毒间必须单独设置。因材质等原因无法采用热力消毒的除外,餐饮具和接触直接人口食品的用具、容器应用热力方法进行消毒。
6.清洗消毒水池应专用,严格与食品原料、清洁用具及接触非直接人口食品的用具、容器清洗水池分开。根据规范要求,不同规模档次的餐馆工作场所的分隔要求不同,在设计中结合实际情况,保证规范标准的落实。
以上这些就是我们总结关于商用厨房功能间如何分割的相关知识,希望对大家有所帮助。
上一个产品:餐饮食堂厨房设备厂家告诉你餐饮经营企业如...
下一个产品:大型食堂厨房设备公司告诉你厨房设施的卫生...
分享这个产品







